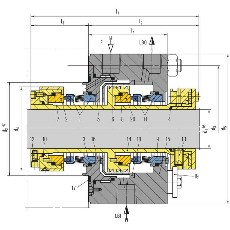
LY9TCS-T
Dual seal
Arrangement: Face-to-back (Tandem),
2CW-CW, 3CW-FB

Item Description
1, 11 Seal ring with bellows unit
3, 4, 5, 6, 7, 8, 9, 10 Graphite ring
2, 20 Mating ring
12, 13 Set screw
14 Seal sleeve with pumping screw
15 Gland plate
16 Adapter
17 Spiral wound gasket
18 Flow guide
19 Assembly fixture


F Flush
LBO Liquid buffer/barrier OUT
LBI Liquid buffer/barrier IN

LY9TCS

Features

  • API 682 Category 2 and 3, Type C seal
  • Balanced
  • Cartridge unit
  • Stationary metal bellows
  • Shrink fitted seal rings and solid mating rings

Advantages

  • Suitable for higher speeds
  • Good followability due to no influence from run-out, squareness or vibration of the shaft
  • Compact design
  • Also available in double ply design
  • Suited for application with extreme high and low temperature
  • Absence of dynamic O-ring eliminates/reduces seal face hang-up
  • Bellows design minimizes variation in face load due to shaft expansion or face wear
  • Resistant to abrasive particles in the medium, no shaft or sleeve fretting

Operating range

Shaft diameter:
d1 = 20 … 110 mm* (0.79" … 4.33"*)
Pressure single ply bellows:
p = vacuum … 25 bar* (… 363 PSI*)
Pressure double ply bellows:
p = vacuum … 35 bar (… 508 PSI)
Temperature:
t = -75 °C* … +400 °C (-103 °F* … 752 °F)
Sliding velocity:
vg = … 50 m/s* (…164 ft/s*)

* Please contact an EagleBurgmann engineering expert when the operating range of the required seal exceeds the range shown above.

Materials

Seal ring: Blister resistant carbon (C4), RBSiC (Q2)
Mating ring: RBSiC (Q2)
Bellows: Inconel® 718 (M6)
Secondary seal: Graphite (G)
Metal parts: CrNiMo steel 316/316L (G), Carpenter® 42 (T4)

Standards and approvals

  • API 682 / ISO 21049
  • API 682 4th ed. Cat. 2/3
  • Compliant to TA Luft (German Clean Air Act) (LY9TCS-T, LY9TCS-F)



Product variants

LY9TCS-S
Single seal
Arrangement: 1CW-FL
LY9TCS-F
Dual seal
Arrangement: Face-to-face, 3CW-FF

Similar products

LY9TCR

  • API 682 Category 2 and 3, Type C seal
  • Balanced
  • Cartridge unit
  • Rotating metal bellows
  • Shrink fitted seal rings and solid mating rings
Contact

Inquire about individual solutions

We develop and produce customer-specific special and individual solutions for every application.

Inquire now Discover reference projects
Back to the overview